B2A Info Menu

027 - Espace culturel Malesherbes
Maisons-Laffitte

Maître d’ouvrage : Ville de Maisons-Laffitte
Architectes : Atelier Novembre (mandataire) & B2A (conception de l'enveloppe)
Bureaux d'études : MAW, Cotec, Studio DAP, Tribu, Namixis
Lieu : Maisons-Laffitte (78)
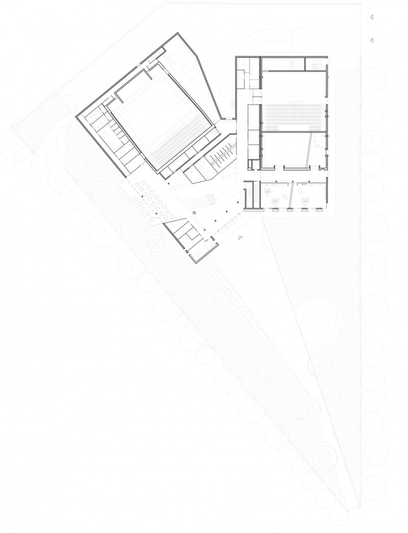
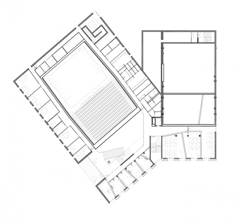
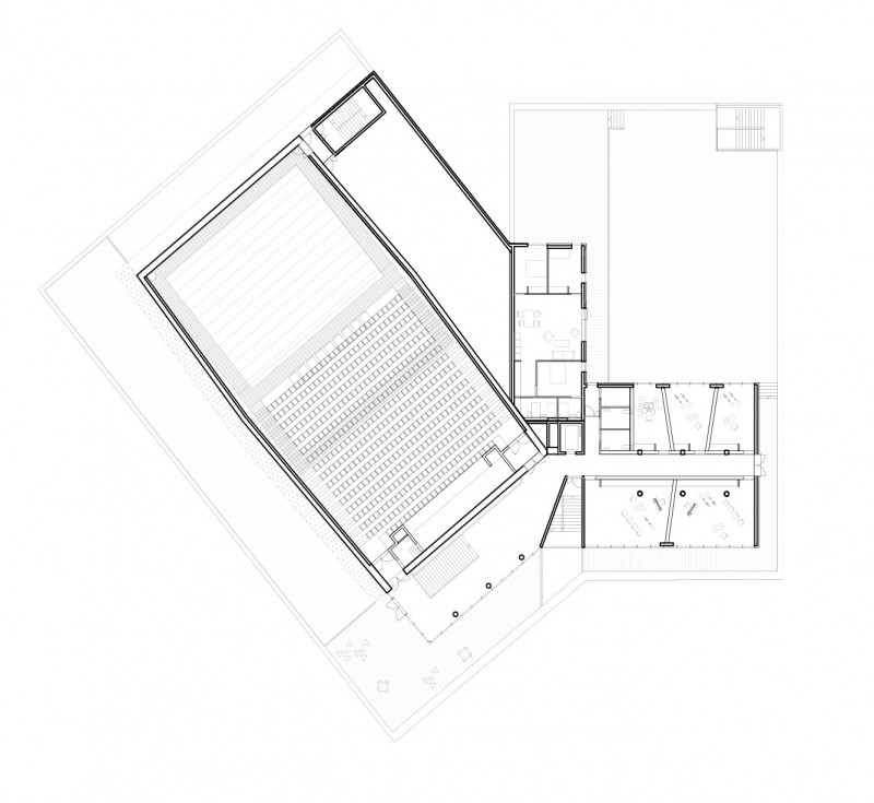
Programme : construction neuve d'une salle de spectacle et restructuration en conservatoire
Surface : 4 400 m²
Montant de travaux : 10 500 000 €
Etat : livré en 2025

Photographies : Takuji Shimmura
B2A 027 - Espace culturel Malesherbes espace-culturel-malsherbe-4-5e
B2A 027 - Espace culturel Malesherbes plan-de-situation_le-conservatoire_1_2000
B2A 027 - Espace culturel Malesherbes dscf6408-copie
B2A 027 - Espace culturel Malesherbes rdc-maisons-laffitte
B2A 027 - Espace culturel Malesherbes dscf6447-copie
B2A 027 - Espace culturel Malesherbes r-1
B2A 027 - Espace culturel Malesherbes r-2
B2A 027 - Espace culturel Malesherbes prototype-axo-proto
B2A 027 - Espace culturel Malesherbes dscf6534-copie
B2A 027 - Espace culturel Malesherbes dscf6162-copie