B2A Info Menu

045 - 30 logements
Fribourg

Maître d’ouvrage : Bourgeoisie de Fribourg
Architectes : B2A + GHAR
Paysagiste : Thomas Boyer
Bureaux d'études : B+S ingénieurs, Effin'Art, BATJ
Lieu : Fribourg, Suisse
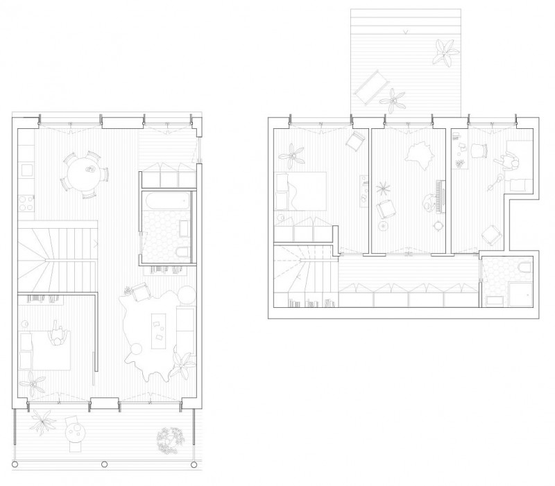
Programme : quartier de logements locatifs durables
Surface : 3 150 m²
Montant de travaux : 9 800 000 CHF
Etat : concours en deux phases - projet finaliste

Maquette : Elise Harel, Images : PPC
B2A 045 - 30 logements fribourg-4-5e
B2A 045 - 30 logements plan-de-situation
B2A 045 - 30 logements p05a-ghar-fribourg-v5-perso1-30
B2A 045 - 30 logements bourg_rendu-rdc-200-r2
B2A 045 - 30 logements ghar-lelievre-img_1928-sat
B2A 045 - 30 logements bourg-typo-rdc-50-table-ronde
B2A 045 - 30 logements ghar-lelievre-img_1911-sat
B2A 045 - 30 logements fribourg-details
B2A 045 - 30 logements p08-ghar-fribourg-v6-30
B2A 045 - 30 logements ghar-lelievre-img_1921-sat
B2A 045 - 30 logements p05a-ghar-fribourg-v5-perso1-30-copie